×

Prestige Botanique


Prestige Botanique is an elegant high-rise residential development located on RV Road in South Bangalore. This thoughtfully designed project spans 0.6 acres and consists of a single sophisticated tower with 34 upscale apartments. The structure includes 2 basement levels, a ground floor, and 8 upper floors (2B + G + 8). It offers large 2 and 3 BHK apartments ranging between 1473 sq. ft and 2473 sq. ft. Prestige Botanique is RERA-approved (RERA No: PR/180627/001936) and has been ready for occupancy since March 2022.





Project Highlights


Development Type

Development Type

Apartment

Project Location

Project Location

RV Road

Total Land Area

Total Land Area

0.6 Acres

No. of Units

No. of Units

34 Units

Towers and Blocks

Towers & Floors

1 Tower & 2B + G + 8 Floors

Project Status

Project Status

Ongoing

Unit Variants

Unit Variants

2 & 3 BHK

Possession Time

Possession Time

March 2022

Rera Karnataka

Rera Approval

PR/180627/001936



Location

Prestige Botanique

Prestige Botanique is located at First Cross, Rashtriya Vidyalaya Road, Upparahalli, Mavalli, Bengaluru – 560004. This area is among the most strategically positioned locations in Bangalore, offering excellent access to key localities like Jayanagar, Basavanagudi, and Banashankari. The neighbourhood is well-connected via RV Road Metro Station, which enhances mobility across the city. Residents benefit from proximity to essential services including top schools, hospitals, retail outlets, and lush green parks. The nearby Lalbagh Botanical Garden adds immense natural charm to the locality, making it a preferred destination for families and professionals alike.

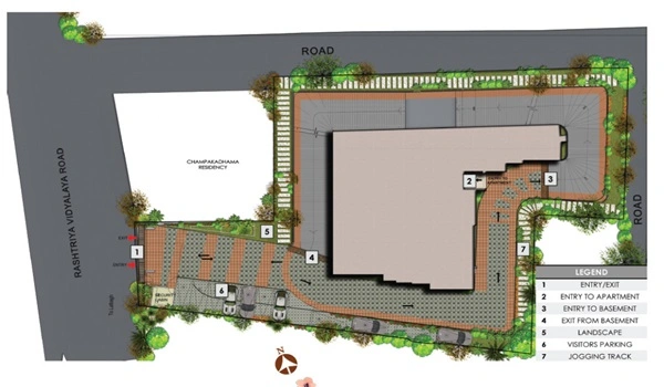
Master Plan

Prestige Botanique Master Plan

The master layout of Prestige Botanique outlines the project’s design on a compact yet efficiently planned 0.6-acre site. The enclave features a single residential tower with a basement-parking structure and nine above-ground floors. The design integrates spacious apartment units with well-placed green zones and modern amenities. The layout reflects optimal land use, ensuring a peaceful residential experience while preserving openness and aesthetic appeal.

Floor Plan

Prestige Botanique Floor Plan
Prestige Botanique Floor Plan

The floor plans of Prestige Botanique provide a comprehensive view of the interior layout of each unit. With areas ranging from 1473 sq. ft to 2473 sq. ft, each floor plan details the positioning of rooms, walls, windows, doors, and key interior features. The homes are Vaastu-compliant and allow for maximum natural light and airflow. Every unit is designed for both functionality and luxury, featuring smart space usage for bedrooms, living areas, kitchens, and balconies. The plans aim to offer a fine balance between comfort and style.

Price

Unit Type Floor area Price Range
2 BHK 1473 sq. ft Rs. 2.51 Crores onwards
3 BHK 1932 sq. ft to 2473 sq. ft Rs. 3.29 Crores onwards

Prestige Botanique offers premium 2 and 3 BHK residences starting from ₹2.51 Crores. As a product of the renowned Prestige Group, the project reflects top-tier construction quality and thoughtful design. The pricing reflects the combination of a central location, luxury interiors, and limited inventory, making it an attractive option for end-users and investors.

Amenities

Prestige Oakville Amenities

Prestige Botanique offers over 50 lifestyle amenities and features that promote wellness and leisure. The community includes a fully equipped clubhouse, modern fitness centre, and a swimming pool. Landscaped gardens and open green areas provide a peaceful environment within the urban setting. Every amenity is planned to meet the lifestyle needs of residents of all age groups, offering a space to relax, exercise, or socialize.

Specifications


Doors

  • Internal: Laminated Flush Door
  • Main: Wooden Frame and Moulding Door

Flooring

Vitrified Tiles

  • Toilets
  • Balcony
  • Kitchen
  • Living/Dining
  • Master Bedroom
  • Other Bedroom

Walls

  • Exterior: Emulsion Paint
  • Kitchen: Ceramic Tiles up to 2 Feet Height Above Platform
  • Interior: Plaster & OBD
  • Toilets: Combination of Ceramic/Vitrified Tiles Dado


Ceramic Tiles

  • Balcony
  • Kitchen

Fittings

  • Exhaust Fan for Toilets
  • Exhaust Fan for Kitchen

Others

  • Points: Living
  • UPVC / Aluminium Windows
  • Copper Wiring in PVC Concealed Conduit
  • RCC framed structure
  • Modular switches

Homes at Prestige Botanique are crafted using superior materials and finishes. Flooring in all rooms features premium vitrified tiles, while bathrooms and balconies are equipped with ceramic and anti-skid tiles for safety. The kitchens are designed to be ergonomic and efficient, with polished granite countertops and ample storage options. Ceramic tile dado and easy-to-maintain surfaces enhance usability and cleanliness. Each specification ensures long-lasting quality and comfort in every corner of the home.

Reviews

Prestige Oakville Reviews

Prestige Botanique has garnered highly positive reviews for its design, location, and construction standards. Considered one of the most anticipated residential launches in the RV Road corridor, the project stands out for its boutique scale, exclusivity, and Prestige Group’s trusted brand reputation. Buyers are especially appreciative of the peaceful environment, accessibility, and luxury finishes, making it a standout choice in South Bangalore.

FAQS

1. Are the homes in Prestige Botanique well-ventilated and well-lit?

Yes, the apartments are designed to ensure natural light and cross ventilation throughout the year, with strategically positioned windows and balconies.

2. Can modern electrical appliances be used in the apartments?

Absolutely. Each home includes multiple power outlets, capable of supporting a wide variety of household gadgets and appliances.

3. What is the floor area range of apartments in the project?

The apartment sizes vary between 1473 sq. ft and 2473 sq. ft, offering spacious configurations.

4. Does the project include green areas or parks?

Yes, more than 80% of the development is allocated for open spaces, including gardens and landscaped parks for residents to enjoy.

5. Is Prestige Botanique a secure place to live?

Yes, the project ensures resident safety through round-the-clock security personnel at all access points, in addition to modern surveillance systems for common areas.

About Prestige Group

About Prestige Group

Prestige Group is one of India’s most renowned and trusted real estate developers, head office in Bangalore. With over 35 years of industry experience, Prestige has built a legacy of landmark projects across residential, commercial, hospitality, and retail sectors. Known for its quality, and customer satisfaction, the group has delivered projects in major Indian cities including Hyderabad, Chennai, Kochi, Mumbai, and Goa.

Prestige Group’s developments are characterized by excellence in architecture, thoughtful design, and long-term value. With projects like Prestige Botanique, the company continues to offer elegant, future-ready homes that balance luxury with practicality.


Prestige Oakville Blogs



Disclaimer: Any content mentioned in this website is for information purpose only and Prices are subject to change without notice. This website is just for the purpose of information only and not to be considered as an official website.